

What we do
Architectural Consultancy
With a full scope of work, we offer bespoke design develop to detail and follow through on-site.
Our firm is registered with the Board of Architects Malaysia (SP/P 44).
Masterplan
We provide strategic masterplanning services that transform land into future-ready developments through integrated site analysis and regulatory strategy; delivering solutions that are visionary, commercially viable, and practically executable.
Interior Design
We love enhancing spaces within buildings - how they are used, felt, and experienced.
Spatial Branding
Spaces & experience are inseparable, we offer an integrated approach to include branding, product design, lighting, logo, signage, ensuring a cohesive experience.
Local Authority Submissions
We liaise with relevant departments to secure timely approvals, ensuring compliance up to completion.
Let's collaborate

ZHINIPOH architect © 2025. all rights reserved





Completed 2019
Designers:
Zhini & Ziyang Poh
ZHINIPOH architect © 2025. all rights reserved




Design Competition Greenovation, 2017
- Fifth place
Designers:
Zhini & SeeSern Khor
ZHINIPOH architect © 2025. all rights reserved




Completed 2018,
in Collaboration with Studio Asean
ZHINIPOH architect © 2025. all rights reserved






Butterworth Outer Ring Road Design Competition-2019, in Collaboration with Nabihaiyee





Ora Gym, 2025Commercial Renovation



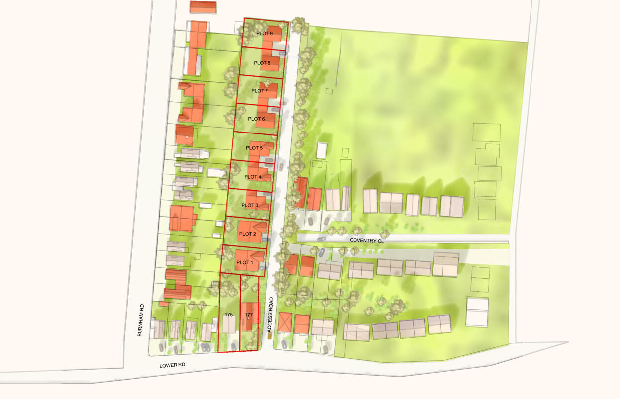
Hockley Masterplan, 2025




2025



2025, ongoing
ZHINIPOH architect © 2025. all rights reserved

Principal
Ar. Poh Zhini is a Malaysia based architect and the founder of Zhini Poh Architect. She holds a Master of Architecture from the Westminster University and Bachelor's degree from Universty of Sheffield, UK. She is a registered architect with Board of Architects Malaysia (LAM).Before starting her own practice, Zhini gained professional experience across a range of residential, commercial, and institutional projects — working with established firms in both Malaysia and the UK.With curiosity and a spirit of exploration, she hopes to leave positive impact on the built environment and the people who inhabit it.

ZHINIPOH architect © 2025. all rights reserved